Skip To Content

338 North White Rock Trl

Mesquite, NV 89027
  • $359,000
  • STATUS: Active
  • ON SITE: 145 Days
  • MLS #: 1126978
$359,000
  • 3
    BEDS
  • 0.02
    ACRES
  • 2
    BATHS
  • 1
    1/2 BATHS
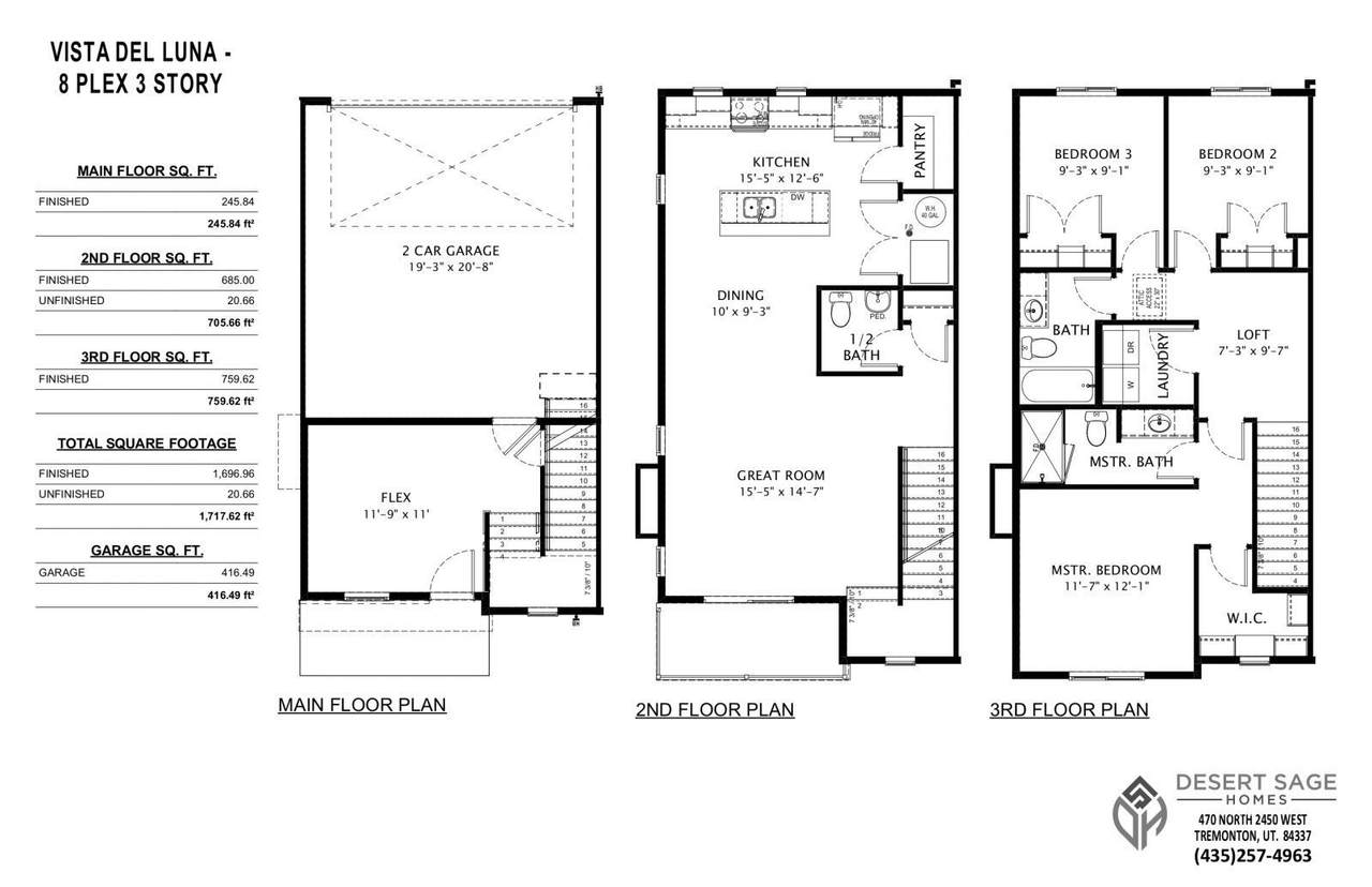
  • 1,732
    SQFT
  • $207
    $/SQFT
Neighborhood:
Type:
Townhouse
Built:
2025
County:
Area:

School Information

Elementary School:
Middle School:
High School:

Description

Desert Sage Homes is proud to bring to the Mesquite Market Vista Del Luna Townhomes This contemporary styled three story townhome is an end unit with mountain views and a wrap around deck. Well appointed with modern interior finishes including knotty alder cabinets, quartz countertops, brushed nickel lighting, kitchen and bath fixtures. Laminate flooring, tile bathrooms and carpet in the 3 bedrooms. Main Bedroom has large walk in closet and laundry located on third floor with bedrooms. Two car standard size garage. Currently under construction with the first 8 plex building to be completed mid to late September. Community will include a pool and community center to be built in the second phase. Located off Bertha Howe Ave. Close to medical services, assisted living center, shopping, restaurants, Casablanca Resort and Mesquite Commerce and Technology Center.

Monthly Payment Calculator



© 2026 Mesquite Real Estate Association. All rights reserved. IDX information is provided exclusively for consumers' personal, non-commercial use and may not be used for any purpose other than to identify prospective properties consumers may be interested in purchasing. Information is deemed reliable but is not guaranteed accurate by the MLS or RE/MAX Ridge Realty. Data last updated: 2026-03-07T23:47:26.21.
www.homesinmesquite.com/homes/168825755
Print Image

338 North White Rock Trl Mesquite, NV 89027

  • Price: $359,000
  • Status: Active
  • On Site: 145 Days
  • MLS #: 1126978
3
Beds
2
Baths
1
½ Baths
0.02
Acres
1,732
SQFT
$207
$/SQFT
2025
Built
Neighborhood:
Vista Del Luna
County:
Clark
Area:
North Of I15
Elementary School:
Virgin Valley
Middle School:
Charles A. Hughes
High School:
Virgin Valley
Property Description
Desert Sage Homes is proud to bring to the Mesquite Market Vista Del Luna Townhomes This contemporary styled three story townhome is an end unit with mountain views and a wrap around deck. Well appointed with modern interior finishes including knotty alder cabinets, quartz countertops, brushed nickel lighting, kitchen and bath fixtures. Laminate flooring, tile bathrooms and carpet in the 3 bedrooms. Main Bedroom has large walk in closet and laundry located on third floor with bedrooms. Two car standard size garage. Currently under construction with the first 8 plex building to be completed mid to late September. Community will include a pool and community center to be built in the second phase. Located off Bertha Howe Ave. Close to medical services, assisted living center, shopping, restaurants, Casablanca Resort and Mesquite Commerce and Technology Center.
Exterior Features

Exterior Construction Stucco Exterior Features Curb & GutterLandscape- FullSidewalksSprinklers- Drip SystemView of MountainsPatio- CoveredSwimming Pool- Assoc.Vacation Rentals Allowed Garage Description AttachedAuto Door(s)Remote Opener Property Style Contemporary3 story above ground Roof Type Shingle Swimming Pool Description AssociationConcrete/GuniteFencedHotTub/SpaIn Ground

Interior Features

Appliances DishwasherGarbage DisposalMicrowaveW/D HookupsWater Heater- ElectricOven/Range- Electric Basement None Bathrooms Total 2.5 Cooling ElectricHeat Pump Foundation Slab on Grade Heating ElectricHeat Pump Interior Features Flooring- CarpetFlooring- LaminateFlooring- TileGarden TubSmart WiringWalk-in Closets Total Rooms 11

Property Features

Community Name Vista Del Luna Estimated Annual Taxes 0 Hoa Fees 142.00 Hoa Fees Term month HOAIncludes ClubhouseCommon AreasExterior BuildingGarbageHot Tub/SpaManagementPoolProperty InsuranceRoad MaintenanceSewerSingle HOA only Property Subtype HOA-YesSpecial Assessment-NoNew HomeUnder Construction Rental Price 0 Utilities Wired for CableCable T.V.Internet: Cable/DSLWater Source: Water CompanySewer: Hooked-upPhone: Land LineGarbage CollectionPhone: Cell ServicePower Source: City/Municipal Zoning Residential Townhouses

Listing Information © 2026 Mesquite Real Estate Association.
Listing provided courtesy of Cynthia Biskup of Keller Williams VIP: (702) 672-5149.


© 2026 Mesquite Real Estate Association. All rights reserved. IDX information is provided exclusively for consumers' personal, non-commercial use and may not be used for any purpose other than to identify prospective properties consumers may be interested in purchasing. Information is deemed reliable but is not guaranteed accurate by the MLS or RE/MAX Ridge Realty. Data last updated: 2026-03-07T23:47:26.21.
 
https://bt-photos.global.ssl.fastly.net/mesquite/1280_boomver_4_1126978-2.jpg https://bt-photos.global.ssl.fastly.net/mesquite/1280_boomver_4_1126978-2.jpg https://bt-photos.global.ssl.fastly.net/mesquite/1280_boomver_4_1126978-2.jpg
Logo
RE/MAX Ridge Realty
450 Hillside Drive
Mesquite NV, 89027